продажа квартира в Ореанда п.г.т.

продажа квартира в Ореанда п.г.т.

Россия, Ореанда п.г.т., Без названия ул., 3, к б
Стоимость: 30000000 рублей или 287082 за м2

Характеристики

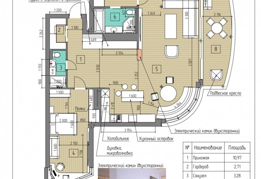
  • Общая площадь, м2 104.5 кв.м.
  • Жилая площадь, м2 77.51 кв.м.
  • Площадь кухни, м2 20 кв.м.
  • Этаж 9
  • Общее количество этажей в доме 9
  • Категория недвижимости квартира
  • Вид из окон На улицу
  • Лифт 1
  • Планировка Изолированная
  • Ремонт требует ремонта
  • Город Ореанда п.г.т.
  • Количество комнат 3
  • Балкон терраса
  • Тип дома Монолитный
  • Тип санузла раздельный
  • Цена 30000000
  • Тип объекта продажа
Арт. 44718541
Продаётся просторная квартира (пентхаус) с видом на горы и море, 9/9 этаж, ЖК "ЦАРСКАЯ ТРОПА". Общая площадь без учёта террасы: 104,5 кв.м., с учётом летней террасы: 142.5 кв.м, площадь комнат: 20.51+28.0+29.0 кв.м, 2 санузла, терраса. На этаже всего две квартиры. Выполнены основные, затратные работы, согласно проекта, а так-же перекрыта крыша. Закрытая, охраняемая, ухоженная территория, консьерж, трёхуровневый подземный паркинг, гостевая парковка. Хвойный ландшафт с высокой концентрацией фитонцидов, окружает дом создавая атмосферу уединения и умиротворения. Пляж в 10 минутах лёгкой прогулкой. Адрес: г. Ялта, пгт. Ореанда, 3Б. Цена 30 млн рублей. Срочная продажа. ТОРГ.

Другие объекты

Звоните в наш отдел продаж, мы с радостью расскажем и покажем вам все +7 978 588 33 38 или +7 978 055 05 02

Copyright © 2026 yalta-ml